HDHQ
An oasis of calm amidst urban noise!
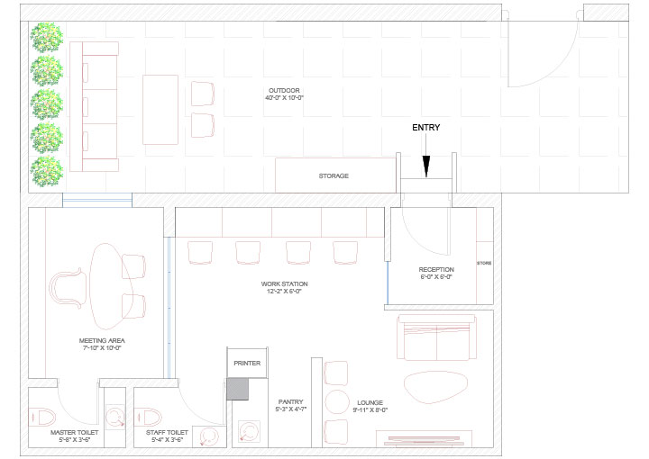
Project Area: 400 Sq.ft
Project Location: Santacruz (West)
Project type: Commercial
Project status: Completed 2024

Intent
The 400 sq.ft office is intelligently planned to maximize the open layout while ensuring that each function retains its unique space. This design facilitates a multipurpose use of the office, allowing flexibility for various activities.
In addition there is 400 sq.ft open outdoor area. Positioned on the ground floor, the layout promotes interaction and versatility, dedicating distinct zones to various functions while maintaining an open atmosphere.
Outcome
HDHQ embodies the perfect synergy between minimalism, efficiency, and elegance, creating a workspace that is not only aesthetically refined but also highly adaptable for modern-day professional needs.
At the heart of HDHQ’s design is a monochrome colour palette, where only two shades define the entire project. A gradient transition from dark tones at the base to lighter hues on the walls and ceiling creates a sense of depth and elevation, enhancing the visual experience. The limited material palette further reinforces the ethos of minimalism, evoking a sense of zen-like tranquillity.






What Our Clients Say !
HAVE A QUESTION FOR US?
LET’S TALK.
Get in touch with THD Design Studio to bring your dream vacation home or luxury interiors to life.
For project inquiries, EMAIL - projects@thddesignstudio.com with the subject PROJECT BRIEF

